Progetto sperimentale per un
impianto pilota di cogenerazione asservito alla C.le A.P. SALEMI - Milano
Importo dei lavori: 1.254.000,00
Committente: Metropolitana
Milanese SPA
Grado di attuazione: in fase di realizzazione

Figura 1 3D
Strutture

Figura 2 3D
Strutture

Figura 3 Stato
di Fatto

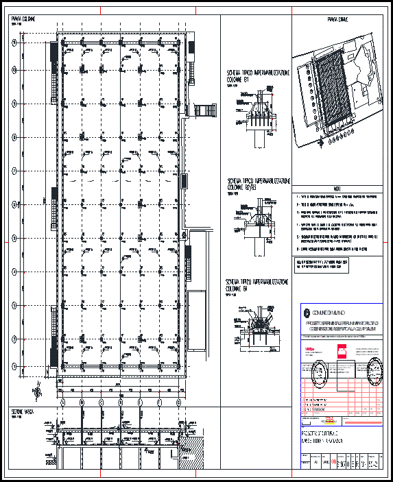
Figura 4 Tavola Strutturale
Pianta Colonne

Figura 5 Tavola
Strutturale Attacchi Piano Terra